本記事では、弊社が募集窓口である「新宿三葉ビル」9階のセットアップオフィスをご紹介いたします。
高層ビル群より近い、新宿駅西口から徒歩1分の好立地
新宿駅西口B16,B17出口から徒歩1分。広大な新宿駅高層ビル群より近いところに位置する「新宿三葉ビル」。
アクセスの良さはもちろん、通勤や来客の利便性も抜群です。特に取引先への訪問や外部パートナーの来客が多い企業にとっては、この“駅チカ”は大きなアドバンテージになるでしょう。

新宿駅から来ると、ビルの入口は一見コンパクトですが、中へ進むと想像以上に開放的な空間が広がります。

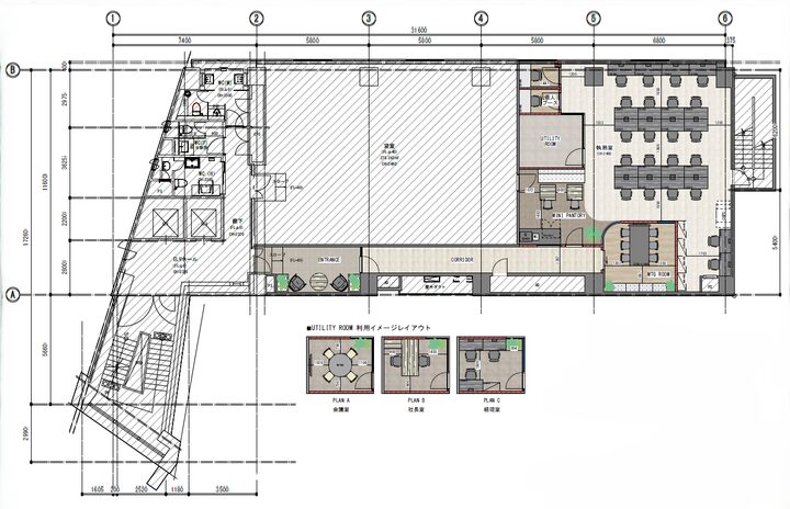
エレベーターを降りてすぐ左側にオフィスがあり、来訪者が迷う心配もありません。
ゆとりあるエントランスと演出の幅が広がる廊下
エントランスには、5~6人がゆったりと座れる大きなソファを設置。
複数人での来客対応にも安心な、広々とした空間です。

本フロアで印象的なのは、奥へと続く長い廊下。

この空間は、執務室への入室前に集中を高める「静けさの通路」としての機能を持つだけでなく、壁面に自社の歴史や理念などを掲示した“ギャラリー”にすることで、会議室へ向かう来訪者向けへの演出として活用することも可能です。
一般的な40坪クラスのオフィスでは難しい、余白を活かした空間づくりができます。
働く人の“快適”を支える、充実した設備
執務室は22席で、開放感のある大きな窓に面しています。

執務室の角には、社員のリフレッシュや小休憩にぴったりのソファ席があるパントリーも備えています。執務室とのエリア分けを天井・床の色で行ったり、会議室との壁はアーチ状のガラスを採用しているため、効率のいいレイアウトを採用しながら抜け感もあります。

会議室にはモニターを完備し、6名までの打ち合わせに対応できます。目線の位置はくもりガラスになっているため、執務室と会議室とで互いの視線を気にすることなく利用できます。

そして、大注目なのが、完全個室のWEBブースが2室用意されている点。防音性にも優れており、集中してオンラインでの打ち合わせや配信業務を行いたい方におすすめです。


再エネ100%のオフィスで、サステナブルな働き方を
環境配慮にも力を入れており、2024年4月からは再生可能エネルギー比率100%を達成。さらに、什器には環境負荷を抑えた素材を採用しています。
物件概要

賃料条件やその他設備は、こちらからご覧ください。
まとめ
「新宿三葉ビル」9階フロアのセットアップオフィスは、アクセスの良さと快適な設備が揃っています。来訪者にも従業員にも心地よい空間設計が施されており、企業のブランド価値を高めてくれるでしょう。
【現地内覧をご希望の方は、下記までお問い合わせください】
株式会社HATARABA
担当:田中・川島
電話番号:03-5464-1315
メールアドレス:office_lm@office-b.com